練馬春日町68 -佳景悠然-

Point
- ゆとりある土地45坪
- ガレージ付コンセプト住宅
- テーマはモダンインテリア
- 創業30周年に向けた新プロジェクト
- 耐震等級3・太陽光ソーラーパネル搭載
価格: 1億3,980万円
東京都練馬区春日町6丁目
都営大江戸線「練馬春日町」駅徒歩7分
窓の外には四季折々の自然が広がり、佳景悠然たる時間を楽しめる住まい
美しい景色の中で、心に余裕をもって静かに住まう
練馬春日町68 -佳景悠然-
都営大江戸線
「練馬春日町」駅徒歩7分
マルジェ創業30周年に向けた一大プロジェクト
この大きな節目を飾るべく、選び抜かれた立地と確かな品質を形にした新プロジェクト。
30年の集大成をここに 住む人の誇りとなる邸宅を目指し、細部までこだわり抜いた設計。
長年、地域と共に歩んできた私たちが自信を持って贈る一邸を、ぜひその目でお確かめください。
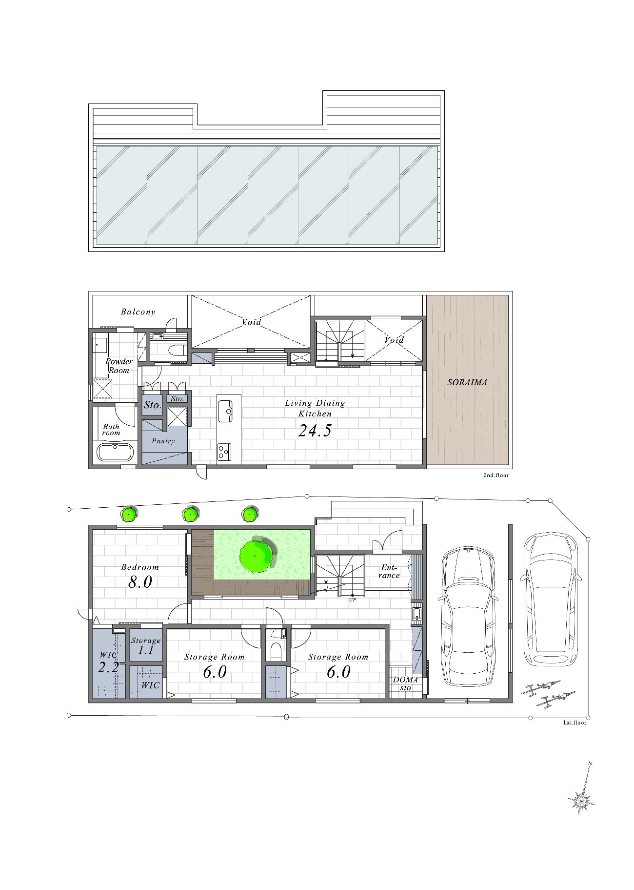
≪リビング≫
≪中庭≫

《外観》

お問い合わせはこちら
Photo gallery
-

勾配天井が描き出す、光と開放感に満ちたリビング。24帖もの広さを誇るLDKは、勾配天井にすることで縦への広がりもプラス。計算されたダウンライトの配置が、夜にはホテルライクな表情を演出します。グレーを基調としたタイル調のフロアと、ブラックのキッチンが調和する、まさに大人のための洗練された住空間です。
-

PLAN 「広さと開放感に包まれる、贅沢な日常。こだわり抜いた『ゆとり』をデザインしたコンセプト住宅。」
-

水平ラインを強調したシャープなデザインで、圧迫感を抑えた美しい外観を実現しました。 ビルトインガレージから玄関へと続く機能的な動線と、生活感を感じさせないミニマルなスタイルを両立。 窓を極限まで絞り込んだクローズドな外観は、防犯性とプライバシーを究めた、現代の都市居住における一つの正解です。
-

イロハモミジの中庭。住まいの中心に、光と風、そして季節の移ろいを引き込む中庭を配置。落ち着いたトーンの外壁に囲まれたプライベート空間には、繊細な枝ぶりのイロハモミジと瑞々しい苔を設え、都会の喧騒を忘れさせる「静」の風景を創り出しました。夜にはライトアップされた樹木が、室内へ幻想的な景色を届けます。
-

スタイリッシュな屋外シャワー。 サウナ後の水シャワーや、夏場のクールダウン、さらには愛犬の足洗いまで。 日常の中に「外で浴びる」という贅沢を取り入れ、心身ともにリフレッシュできる時間を演出します。
-

シックなグレーの外壁に、美しい木目のガレージシャッターが映えるファサード。愛車を大切に守るビルトインガレージは、住まい手に「所有する歓び」を再認識させてくれます。 シャッターが静かに降りる瞬間、邸宅としての安心感と誇りがさらに深まります。
-

「愛車と過ごす、至福のプライベートガレージ」 住まいの外壁と美しく調和する、スタイリッシュなインナーガレージ。 雨の日も夜遅くの帰宅も、電動シャッターをリモコン一つで開閉すれば、濡れることなくスマートに室内へ。 愛車を風雨や悪戯から守るだけでなく、趣味の道具を並べて「大人の隠れ家」としても愉しめる空間です。
-

「贅沢な余白と、こだわりを詰め込む場所」 足元に広がるモルタル調の床が、洗練された大人な雰囲気を演出します。 広々としたウォークインクローゼットに衣類をスッキリ収めれば、生活感を隠した美しい空間をキープ。さらに集中力を高める書斎も完備し、オンとオフの切り替えもスムーズに。 ただ眠るだけではない、感性を磨くプライベート空間です。
-

豊かな採光を確保する高窓(ハイサイドライト)を採用。 さらに室内窓越しに中庭を望むことで、面積以上の奥行きと開放感を演出しています。
-

「中庭を独り占めする、光の寝室」 「外の気配を感じながらも、誰にも邪魔されない」 究極のプライベート空間としての寝室をご提案します。
-

「家具配置を邪魔しない、計算された高窓の魔法」 6帖の空間を最大限に有効活用。窓を高い位置に配置することで、壁面を自由に使えるデザインに仕上げました。
-

お気に入りのデスクやベッドを窓下に置いても、採光を遮ることなくスッキリ収まります。 「窓があるから家具が置けない」という悩みを解消し、自分らしいレイアウトを存分に楽しめるお部屋です。
-

「光と影が交差する、ギャラリーのようなエントランス」 扉を開けた瞬間、目に飛び込んでくるのは、オブジェのように美しい鉄骨階段。 あえて蹴込み板のないスケルトン構造にすることで、視線が抜け、空間をより広く、ドラマチックに演出します。
-

広々とした土間スペースは、お気に入りのアートを飾ったり、自転車を置いたりと、住む人の個性を表現するキャンバスに。 毎日の「ただいま」を特別な時間に変えてくれる、邸宅の象徴です。
-

自動水やり機能を完備しているため、忙しい毎日でも、手間をかけずにこの美しい景観をキープ。 ただ眺めるだけで心が整う、住まいの中心に宿る癒やしの空間です。
-

「どこにいても、季節の移ろいと繋がる家」 この住まいの中心は、鮮やかな緑を湛える中庭のイロハモミジ。 1階からはしっとりとした和の趣を、2階リビングからは空へと伸びる枝葉の躍動感を愉しむ。 吹き抜けを通じて、家中に四季の表情が届きます。 夜はライトアップされた紅葉を眺めながら、上質なリラックスタイムを。
-

「美しさとゆとりを纏う、サニタリールーム」 ワイドなミラーキャビネットと、落ち着いた木目調の収納を組み合わせた洗面台。
-

「整う、サニタリー。賢いリネン庫のある暮らし」 洗面、洗濯、入浴。 毎日のルーティンを快適にする、大容量の可動棚。 「使う場所のすぐそばに収納がある」という贅沢が、家事の時間を心地よく変えてくれます。
-

「歩くたびに心が整う、光と緑のギャラリー」 部屋から部屋へ移動するだけの廊下が、この家では一番の癒やしスポットに。 壁一面の大きな窓の向こうには、美しく手入れされた中庭が広がります。 朝は柔らかな光を浴びながら、夜はライトアップされたイロハモミジを眺めながら。 日常の何気ない移動の瞬間を、贅沢な時間へと変えてくれる設計です。
-

「暮らしを整える、大容量のL字型ウォークインクローゼット」 主寝室に直結したWICは、空間を有効活用できるL字型のハンガーパイプを採用。
-

「キッチンを常に美しく。ストック品を賢く収める大容量パントリー」 キッチン背面に、使い勝手を追求したオープンタイプのパントリーを設置しました。
-

「生活感を美しい背景に変える、洗練の収納設計」 コンクリート調のフロアと、清潔感あふれるホワイトのコントラストが美しいキッチンスペース。
-

「親子で並んでもゆったり。1.25坪の広々バスルーム」 通常の1坪サイズより一回り大きい、1.25坪タイプのバスルームを採用しました。ゆったりと湯船に浸かりながらテレビを楽しめる、ワンランク上のバスタイムを実現します。
-

「ホテルのような開放感。ゆとりが心地よいサニタリースケープ」 トイレという日常の空間に、圧倒的な広さと上質感を持たせました。
-

「キッチンは、住まいの主役。ボッシュと共に叶える、ゆとりある時間」 圧倒的な存在感を放つ、ブラックアイランドキッチン。 そこに組み込まれたのは、世界中で愛されるボッシュ(BOSCH)の大型食洗機です。
-

「生活感を美しい扉の向こうへ。魅せるアイランドキッチンの新常識」 ダイニングから目に触れるキッチン背面(前面パネル)を、贅沢なフル扉収納に仕立てました。
-

「リビングの先にある、空と繋がるプライベートテラス」 大開口のサッシを開ければ、リビングとひと続きになる開放的なバルコニー空間。テーブルを置いてランチを楽しんだり、夜風を感じながらお酒を嗜んだり。外からの視線を遮る高壁設計なので、プライバシーを守りつつ開放感を独り占めできます。
-

「静謐な空気に満たされる、大人のリビング。」 無機質な美しさと、中庭から届く自然の息吹。 計算された光のラインが、暮らしのシーンをドラマチックに描き出します。 ただ「集まる」だけではない、感性を満たすための特別な場所がここにあります。
-

「素材が奏でる、モダンラグジュアリーの真髄」 大理石調の重厚なキッチンカウンターと、無機質なモルタル調の床が織りなす圧倒的な質感。 そこに柔らかな質感のカウチソファや毛足の長いラグを合わせることで、クールさの中に温かみが共存する空間を演出しました。 異なる素材が互いを引き立て合う、こだわり抜いたインテリアが住まう人の感性を刺激します。
-

リビングや寝室から眺めることができる、贅沢な中庭。 足元に広がるのは、鮮やかな緑が美しいスナゴケ。夜のライティングが、木々の影とコケの質感をドラマチックに描き出します。
-

室内からフラットに続くデザインにすることで、リビングをより広く感じさせる視覚効果を生んでいます。 あえて「屋根のない部屋」を作ることで、住宅密集地でもカーテンを開け放して暮らせる贅沢を実現。 都市生活における、究極のリラックススペースです。
-

外からの視線を遮るクローズドな設計でありながら、その内側には2階建てならではの開放的な空間が広がっています。 「隠す美学」を体現した、大人のための隠れ家です。
Spec
-

太陽光なら、無理のない『サステナブルな節約』が叶います。」 買う電気を減らすことは、家計を守るだけでなく地球を守ること。 信頼の建材ノウハウを活かしたソーラーパネルで、クリーンなエネルギー自給自足ライフへ。
-

「耐震構造が『建物の強度』で地震に耐えるのに対し、制震装置は『揺れを吸収』します。構造材への負担を減らすことで、クロスのひび割れや、目に見えない構造のゆがみを抑制。大切な資産価値を守ります。」
-

「現代の住まいは清潔すぎて、体に必要な『善玉菌』まで排除してしまいがちです。FFC免疫住宅は、カビや病原性微生物の繁殖を抑えつつ、人の健康に有益な善玉常在菌が活性化しやすい環境を整えます。住まいそのものが、家族の免疫力をサポートする味方になります。」
-

「高い断熱性能と省エネ設備、そして太陽光発電。ZEH水準の住まいは、毎月の光熱費を劇的に抑えます。エネルギー価格が高騰する現代において、家そのものが家計を守る強力なシェルターになります。」
-

「家中の隙間をなくすことで、エアコンで冷やした(暖めた)空気を逃がしません。従来の断熱材に比べて冷暖房の効率が格段にアップするため、家計にも地球環境にも優しい暮らしが実現します。」
-
_6989413e5f780.jpg)
「高い断熱性能により、外気との温度差による『結露』の発生を大幅に抑制。カビやダニの繁殖を抑えるだけでなく、窓枠周辺の腐食も防ぎ、住まいの清潔さと資産価値を長く保ちます。」
-

「万が一カードキーを紛失してしまっても、ドア本体の設定を上書きするだけで、紛失したカードを無効化できます。従来の物理キーのように、高額な費用をかけてシリンダー(鍵穴)ごと交換する必要はありません。防犯性とコストパフォーマンスを両立したシステムです。」
-

「空気の熱を利用するヒートポンプと、高効率ガス給湯器エコジョーズ。ノーリツのハイブリッド給湯機は、この2つを最適に組み合わせて運転します。従来のガス給湯器と比べ、給湯光熱費を大幅に削減。家計にも地球にも優しい選択です。」
-

「床からのふく射熱が壁や天井に反射して、部屋全体を包み込むように温めます。足元はポカポカ、顔周りはのぼせない『頭寒足熱』の状態をつくるため、集中力が必要な学習や、長時間のデスクワークにも最適です。」
-

「全棟、構造計算に基づいた等級3を実現」 私たちは「等級3相当」という曖昧な表現ではなく、一棟ごとに緻密な構造計算を行い、根拠のある最高等級を追求しています。目に見えない壁の中の強さが、数十年先まで家族を優しく、強く守り続けます。
-

「10年間で3回の定期点検」は、お客様にとって「建てた後も放置されない安心感」と「住まいの資産価値を維持する仕組み」**として非常に魅力的なサービスです。 「売りっぱなしにしない」という姿勢を強調しつつ、具体的なメリットを盛り込んだ掲載用コメント案を作成しました。建てたあとも、ずっと続くパートナーシップ。10年間の定期点検で「安心」をカタチに。 不具合の「芽」を早めに見つける。住まいの健康を10年間見守る、3回の無料点検。 家は建ててからが本当
-

「地盤保証は、その土地と建物の安全性が第三者によって厳格に評価された証でもあります。将来、家を売却・譲渡する際にも、『20年にわたる地盤の保証』が付帯していることは、資産価値を高く維持するための大きな加点要素となります。」

お問い合わせはこちら
物件情報
※掲載内容と現況に相違がある場合は
現況を優先と致します。
基本情報
- 所在地
- 東京都練馬区春日町6丁目
- 物件種別
- 新築戸建
- 間取り部屋数
- 3
- 間取り部屋種類
- LDK
- 総⼾/区画数
- 1
販売価格
- 販売価格
-
1億3,980万円
⼟地
- 地⽬
- 宅地
- ⽤途地域
- 第一種低層住居専用
- 都市計画
- 市街化区域
- 土地面積
- 151.33㎡
- 建ぺい率
- 60%
- 容積率
- 100%
- 道路状況
- 一方
- ⼟地権利
- 所有権
- 道路⽅向1
- 東
- 道路幅員1
- 4m
- 道路⽅向2
- 北
建物構造
- 建物構造
- 木造
- 延べ床⾯積
- 119.20㎡
- 建物階数
(地上) - 2階
- 築年⽉
- 2026年2月完成
- 新築‧中古‧
未⼊居 - 新築
引渡∕⼊居
- 現況
- 完成済
- 引渡/⼊居時期
- 相談
取引態様
- 取引態様
- 売主
- 設備‧条件
-
カップボード 床暖房 ビルトイン浄水器 浴室TV ウォークインクローゼット ウォークスルーシューズクローク 屋上庭園 パントリー 対面式キッチン 節水トイレ 手洗いカウンタ タンクレストイレ シャワー洗浄機能付 LED照明器具付 食器洗い乾燥機 アクアフォーム 制震ダンパー LOW-Eガラス ペアガラスサッシ 車庫2台 カードキー 地盤保証 フラット35S対応可 カラーモニタインターホン 浴室暖房換気乾燥機 ハイブリット給湯・暖房システム アルミ樹脂複合サッシ
周辺環境
- 学校
- 練馬区立練馬小学校 徒歩約7分
練馬区立練馬中学校 徒歩約14分
- 交通
- 都営大江戸線「練馬春日町」駅徒歩7分
※掲載内容と現況に相違がある場合は
現況を優先と致します。
物件の所在地
東京都練馬区春日町6丁目

お問い合わせはこちら
その他の物件
この物件に関するお問い合わせ








_69119921d4c13.jpg)
